1
/
of
4
8 Twenty One Home Design
Plan No. 3406 Modern Farmhouse House Plan - 4 Bed 3.5 Bath
Plan No. 3406 Modern Farmhouse House Plan - 4 Bed 3.5 Bath
Stunning Modern Farmhouse – Spacious & Versatile Living
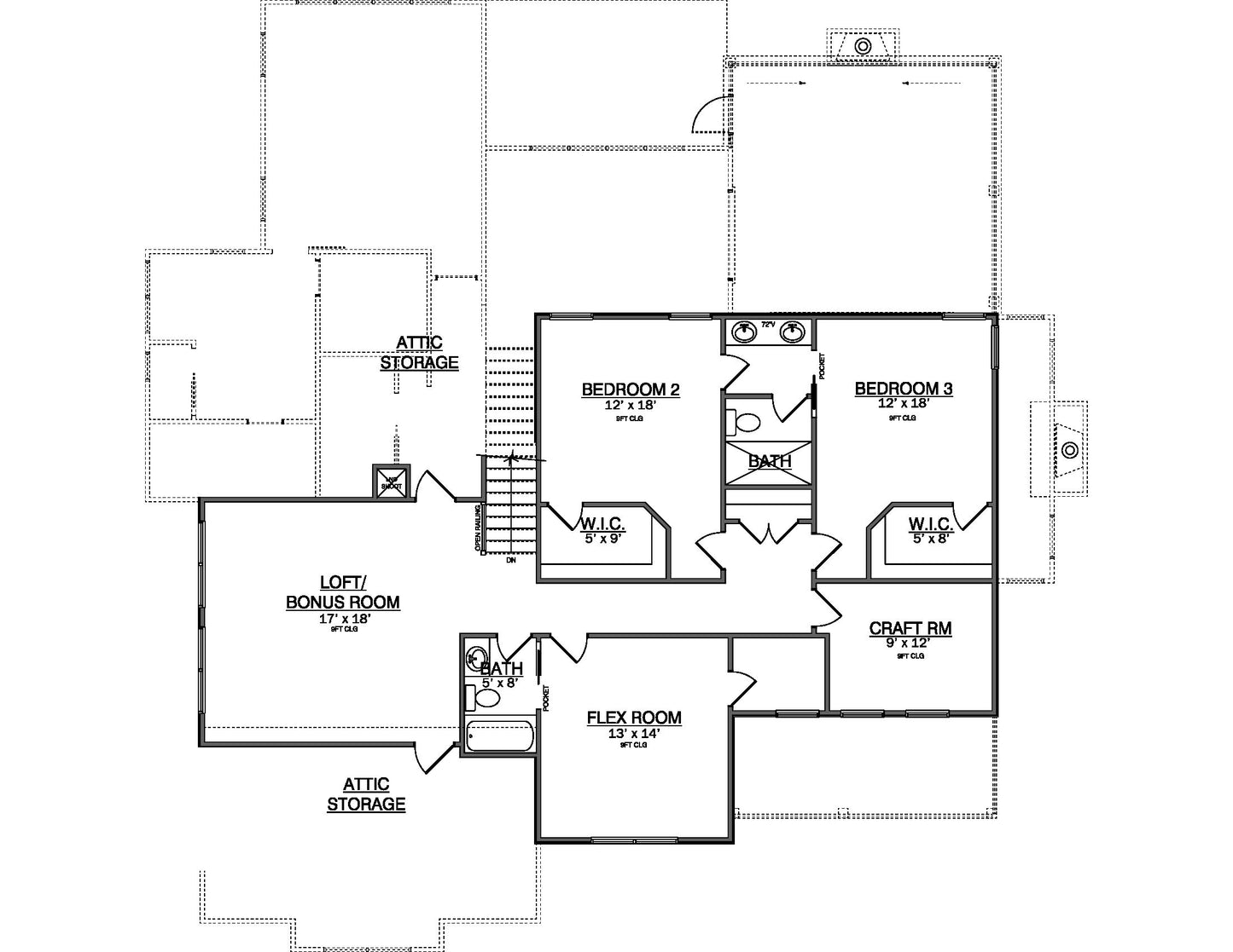
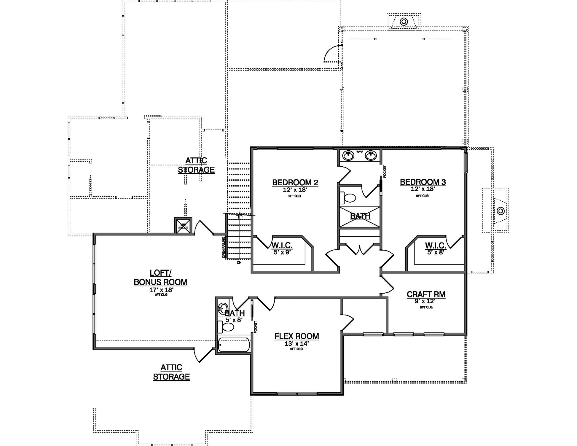
This beautiful 3,406 heated sq. ft. two-story farmhouse is designed for both elegance and practicality, offering ample space and thoughtful features for modern living. With 4 bedrooms, 3.5 baths, an office, a craft room, flex space, and a bonus room, this home provides endless possibilities for work, creativity, and relaxation.
Key Features:
- Primary suite on the first floor with vaulted ceiling for an airy, luxurious feel
- Open-concept living area flows seamlessly into the large rear porch
- Outdoor fireplace on the rear porch—perfect for year-round outdoor enjoyment
- Office, craft room, flex space, and bonus room for ultimate versatility
- 2-car garage with generous storage space
- 3,406 heated square feet of well-designed living space
- Expansive outdoor living areas for entertaining
What's Included in Your Digital Download:
- Complete architectural drawings
- Detailed floor plans with dimensions
- Foundation (crawlspace) and framing plans
- Exterior elevations
Blending classic farmhouse charm with modern amenities, this home is designed for making memories and embracing a truly inviting lifestyle. Ideal for families, entertainers, and those seeking comfort without compromising on style.
Share
