1
/
of
3
8 Twenty One Home Design
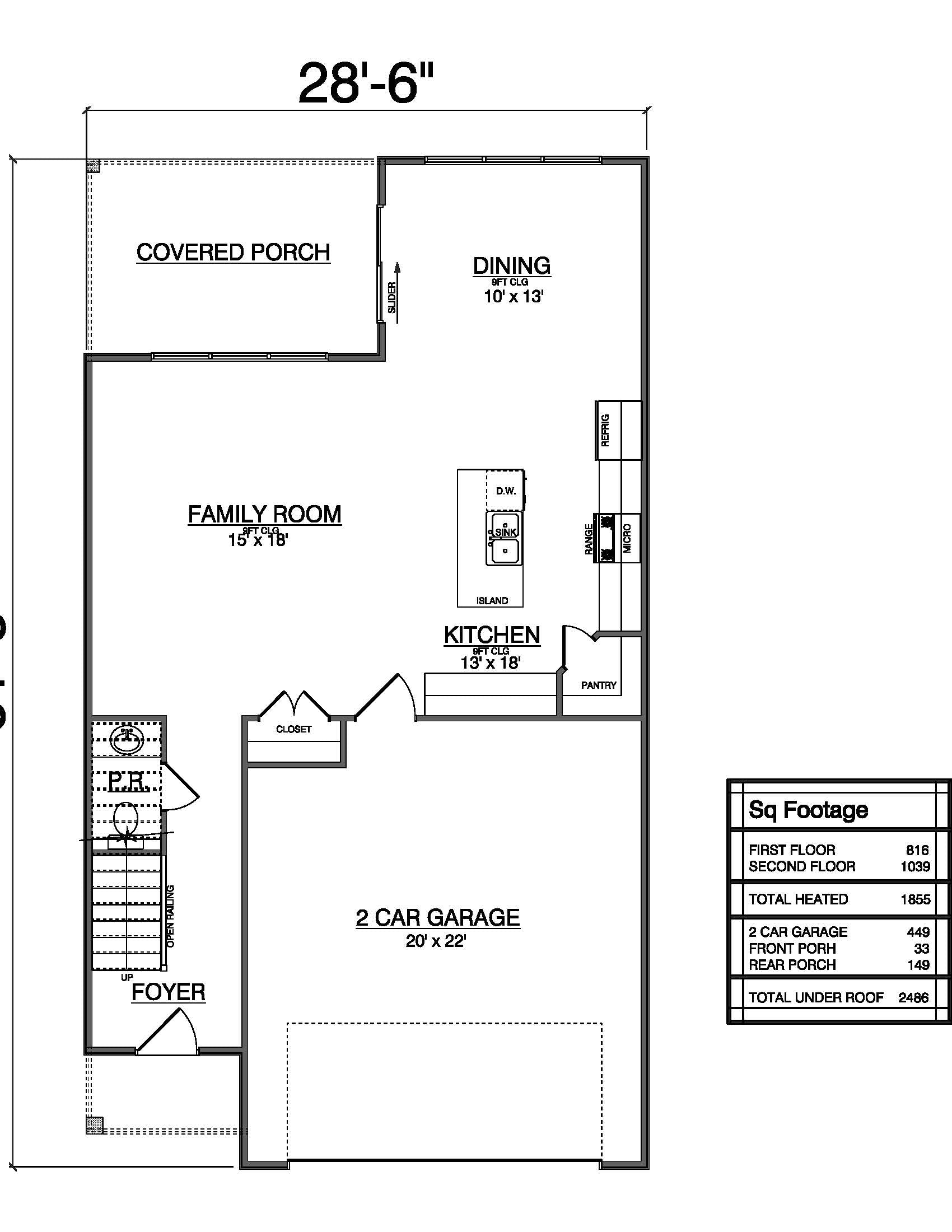
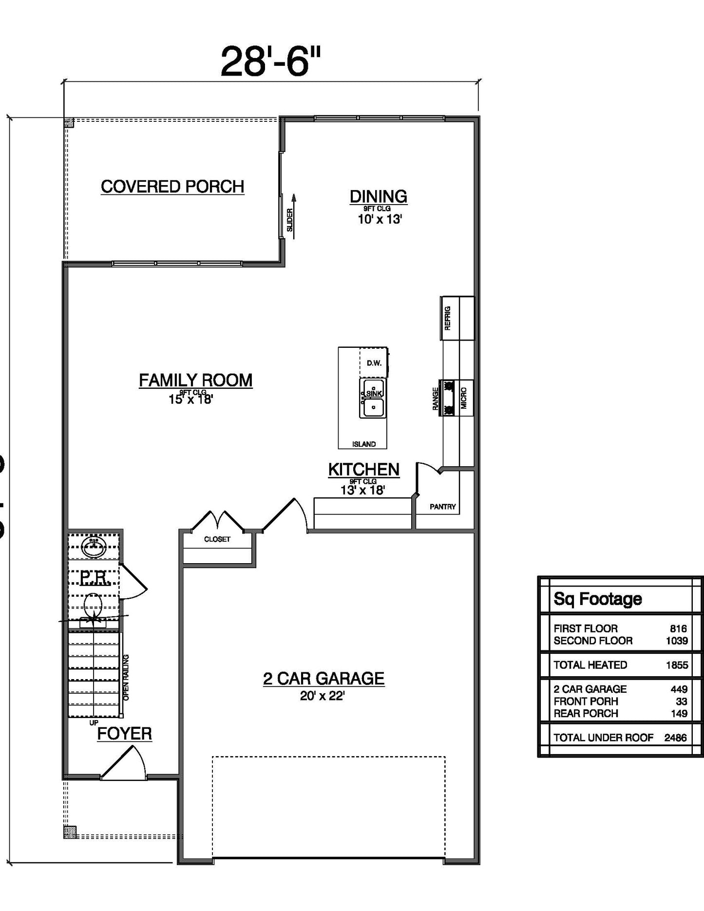
Plan No. 1855 Modern Farmhouse Plan - 1,855 SF | 3 Bed | 2.5 Bath | Two-Story
Plan No. 1855 Modern Farmhouse Plan - 1,855 SF | 3 Bed | 2.5 Bath | Two-Story
This 1,855 heated square foot, two-story modern farmhouse is a well-designed starter home ideal for small lots. The plan features a front-load garage and an efficient layout that maximizes space without sacrificing comfort.
Key Features:
- 1,855 heated square feet
- 3 bedrooms, 2.5 bathrooms
- Two-story design
- Front-load garage
- Spacious primary suite with well-appointed bath and large walk-in closet
- Two secondary bedrooms with Jack-and-Jill bath
- Efficient layout perfect for small lots
What's Included in Your Digital Download:
- Complete architectural drawings
- Detailed floor plans with dimensions
- Foundation (crawlspace) and framing plans
- Exterior elevations
Upstairs, all three bedrooms are thoughtfully arranged, including a spacious primary suite with a well-appointed bath and a large walk-in closet. The two secondary bedrooms share a convenient Jack-and-Jill bath, making the layout perfect for families or guests.
With its charming modern farmhouse style and practical design, this home offers functionality, comfort, and curb appeal in a compact footprint.
Share
